Nouveau
Vente - Marseille 13006 - T3 secteur Cantini / Lodi, idéal investisseur ou 1er achat

Marseille 13006 A vendre Type 3 à rénover avec un balcon et une cave, situé proches de toutes les commodités du centre ville

165 000 €
Réf. 742 CX
3 pièces
50.81m²
Marseille
Mettre en favoris

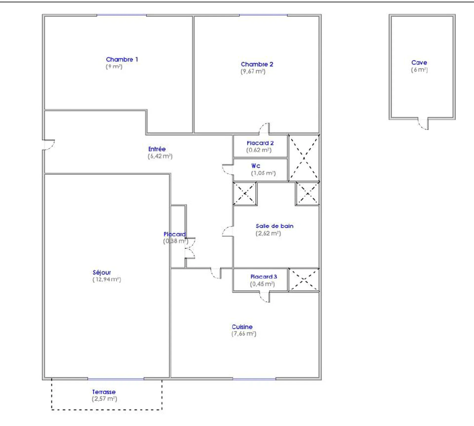
Appartement traversant situé dans le 6ᵉ arrondissement de Marseille, au cœur du quartier Cantini - Lodi, à proximité immédiate de la place Castellane, des commerces et des transports. Au 4ᵉ étage sur 8 avec ascenseur, ce T3 de 50 m² avec un balcon de 2,6 m² offre une vue sur la ville. Il se compose d’une entrée, une cuisine séparée, un séjour, de deux chambres, une salle de bains avec un wc indépendant.

Prévoir des travaux de rénovation afin d' optimiser son potentiel.

Chauffage électrique individuel.

Copropriété de 182 lots d’habitation, immeuble construit avant 1948.

Charges mensuelles de copropriété : 100 €

Taxe foncière : 1 299 €

Une opportunité idéale pour un premier achat ou un investissement dans un secteur recherché du centre ville.

Une cave complète ce bien.

imprimer Voir nos honoraires
Prix hors honoraires 155000€ Nombre chambres 2 Année de construction 1948 Chauffage Individuel électrique Taxe foncière 1299€ Charges courantes annuelles 1200€ Vue dégagée sur le centre ville Étage 4/8 avec ascenseur Surface séjour 13m² Surface cuisine 7.66m² Surface chambre 1 9m² Surface chambre 2 9.67m² Salles de bain/d'eau 2.62m² + wc 1,5m² Ascenseur oui Exposition Sud Est Balcon / Terrasse balcon de 2.57m² Cellier/Cave cave de 6m² Etat général A remettre aux goûts du jour Nombre de lots de la copropriété 182 N° lot Appt 309 + cave 310 Prestations Interphone et ascenseur Copropriété oui Honoraires charge vendeur 10000€ Coût énergie min 1200€ Coût énergie max 1650€ Année de référence 2023 Date de diagnostic réalisé 02-02-2026
Ces biens pourraient vous intéresser
Vente appartement T2/3 Aubagne  en dernier étage d'un petit immeuble du centre historique
Vente appartement T2/3 Aubagne  en dernier étage d'un petit immeuble du centre historique
Sous compromis
119 000 €
Réf. 3355 - Lot 7 - Honoraires à charge vendeur
3 pièces
53.64 m²
Aubagne

Vente appartement T2/3 Aubagne en dernier étage d'un petit immeuble du centre historique

Aubagne - Centre historique - Dans petite ruelle sans nuisance, à proximité immédiate des commerces, appartement de type 2/3 situé au 3ème & dernier étage.
A vendre dans le centre d' Aubagne T3 avec ascenseur proche commerces
Type 3 + parking libre + cave - proche Tramway Aubagne
Exclusivité
185 000 €
Réf. 707- Honoraires à charge vendeur
3 pièces
59.43 m² Loi Carrez
Aubagne
Vente - Aubagne Type 3 rénové dans une résidence fermée du centre ville

Vente appartement de Type 3 avec une cave et parking dans la résidence, situé dans le quartier central du Bras d'Or à Aubagne

Appartement de 60 m² situé au 6éme étage avec ascenseur d'une résidence fermée avec parking dans le centre ville d'Aubagne
Quartier de la Capellette 13010 Marseille
Type 2 en vente dans une résidence du quartier de la Capelette
Nouveau
155 000 €
Réf. 732 CX - Honoraires à charge vendeur
2 pièces
48.91
Marseille
Marseille 13010 - La Capelette

Vente appartement T2 Marseille 10ème quartier La Capelette au 4ème étage dans résidence avec ascenseur

MARSEILLE 10 - Appartement T2 de 48.91 m² - DPE B -Copro de 55 logements - Charges mensuelles de 115€ comprenant l'eau chaude et le chauffage - TF 1154€
Partager :
Confiez-nous votre projet
Restez informés
Cochez cette case afin de recevoir toutes les actualités et les offres en avant-première et Vous acceptez la Politique de confidentialité de Castellas Immobilier
call