Nouveau
Carnoux - Fort potentiel pour cette villa de Type 4 à rénover

A vendre proche du centre de Carnoux en Provence une villa à rénover de Type 4 de plain-pied avec terrain plat

498 000 €
Réf. 740 CX
4 pièces
95m²
Carnoux en Provence
Mettre en favoris

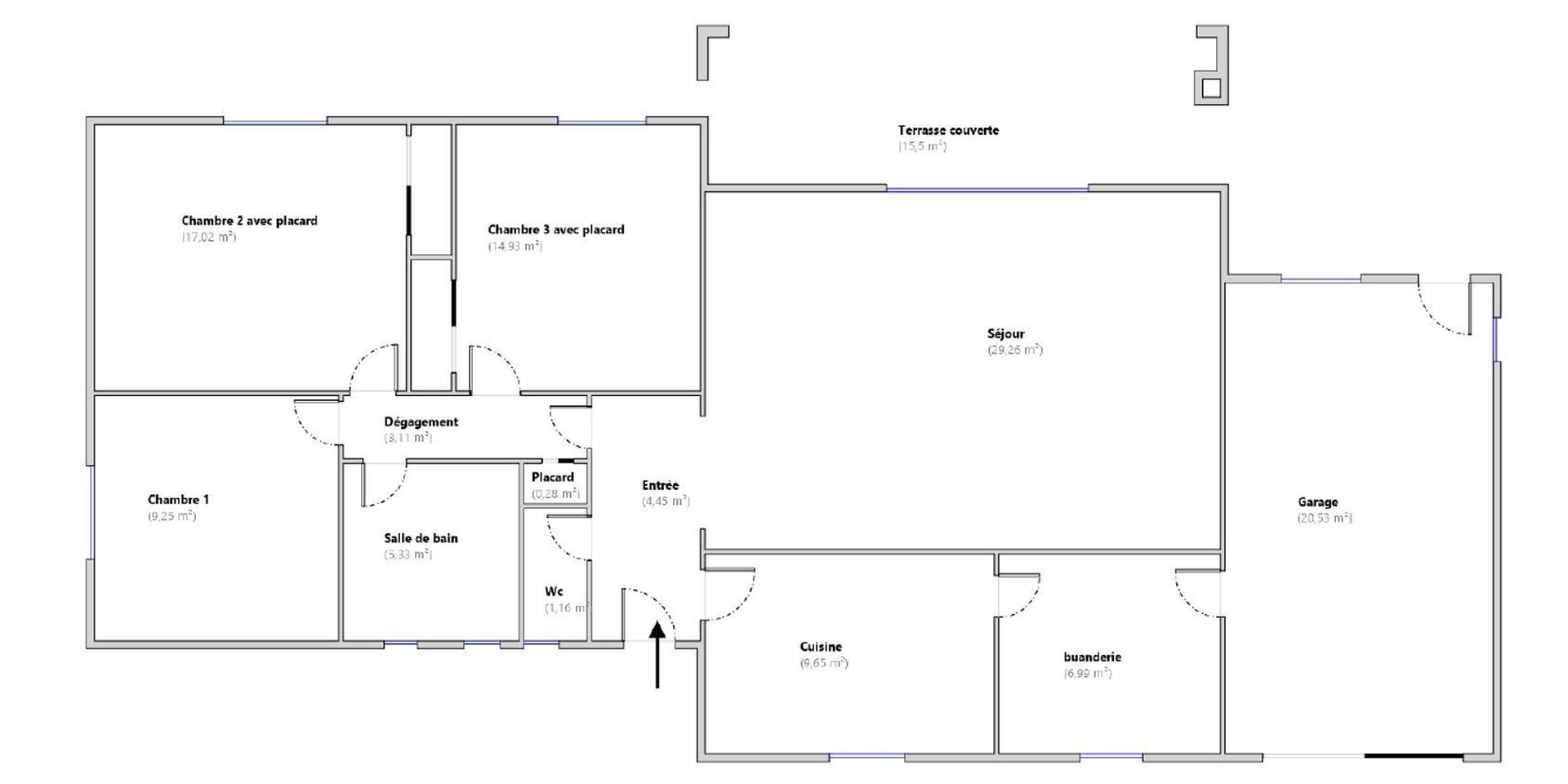
Située à Carnoux, à proximité du centre-ville, cette maison T4 de plain-pied, lumineuse et à rénover, offre un beau potentiel.

Elle développe 95 m² habitables et dispose d’un garage attenant de 20 m², comprenant également un cellier / buanderie.

Édifiée sur un superbe terrain plat de 1 210 m², sans vis-à-vis, cette villa bénéficie d’une exposition plein sud et d’un fort potentiel d’aménagement extérieur, avec possibilité de créer une piscine et une extension.

La commune bénéficie également d’un accès rapide aux axes autoroutiers Marseille–Toulon, facilitant les déplacements quotidiens.

Un bien à découvrir pour ceux qui recherchent la tranquillité, la proximité de Cassis et un véritable potentiel d’évolution.

Une opportunité rare sur le secteur pour un projet familial ou un investissement patrimonial.

  • CARNOUX EN PROVENCE
  • Résid. 1,
    22, Rue du Cardinal Lavigerie
    face à l'église
  • 13470 CARNOUX EN PROVENCE
  • carnoux@castellas-immobilier.com
  • 04 42 73 25 98
Du lundi au vendredi de 9H à 12H et de 14H à 18H.
Le samedi de 9H à 12H.
imprimer Voir nos honoraires
Prix hors honoraires 480000€ Nombre chambres 3 Année de construction 1960 Assainissement tout à l'égout Niveaux plain pied Chauffage individuel Gaz de ville Surface terrain 1210 m² Vue dégagée Surface séjour 30m² Surface cuisine 9.5m² Surface chambre 1 17m² Surface chambre 2 15m² Surface chambre 3 9.5m² Salles de bain/d'eau 5.5m² + Wc séparé 1.2m² Garage 20m² Exposition Sud Balcon / Terrasse 15.50m² Cellier/Cave 7m² Parking 1 Etat général à renover Honoraires charge vendeur 18000€ Coût énergie min 2170€ Coût énergie max 2970€ Année de référence 2023 Date de diagnostic réalisé 04-11-2025
Ces biens pourraient vous intéresser
En vente Type 4 + studio sur les hauteurs de Carnoux
maison à vendre sur carnoux a renover
Sous promesse de vente
520 000 €
Réf. 728 CX - dont honoraires à charge acquéreur
5 pièces
137m²
Carnoux en Provence

Maison Carnoux en Provence vue dégagée, sur les hauteurs, au calme, à rénover

maison Carnoux T4 + T1 de 137m² habitables sur 1000m² - DPE D - TF 1 185€
Maison de Type 3 au calme à Carnoux
A vendre Carnoux en Provence
Vendu
449 000 €
Réf. 698 cx - Honoraires à charge acquéreur
3 pièces
83 m²
Carnoux en Provence

Immobilier Carnoux en Provence Vue dégagée au calme

Maison T3 de 67 m² + 16 m² de véranda sur 891 m² de terrain
A vendre T4/5 Carnoux en Provence 1000m² de terrain
Au calme maison de 108m² à renover 13470
Vendu
567 000 €
Réf. 715 cx
5 pièces
108 M²
Carnoux en Provence

Immobilier - Vente Carnoux en Provence au calme et de plain-pied

Maison T4/5 de 108m² sur 1000 m² - DPE D - Taxe foncière 1400€
Partager :
Confiez-nous votre projet
Restez informés
Cochez cette case afin de recevoir toutes les actualités et les offres en avant-première et Vous acceptez la Politique de confidentialité de Castellas Immobilier
call